Wartezimmer Praxis Dr. Freud



Behandlungszimmer Praxis Dr. Freud

Innenarchitektur der Erweiterung der Privatklinik Döbling

Fertigstellung 2007

Projektbeschreibung

Beim Ambiente der Klinik ist ein Wandel auszumachen. Ursprünglich in sehr klassischen Suejets gehalten (Schwarz-Weiß mit schweren weißen Polstermöbeln und "imperialen" bis "barocken" Attributen bei der Raumausstattung) wurde seit dem Besitzer-/Betreiberwechsel eine lebensnähere "toskanische" Note mit etwas Farbe und italienischem Esprit, bei der Grün als Logofarbe vorherrscht, eingeführt. Der Status quo wird als eine Mischung empfunden, die generell bei der Klientel positive Rückmeldung auslöst und sich nach Selbsteinschätzung positiv von den Mitkonkurrenten abhebt.

Für die Zukunft wird als wesentlich formuliert: Die Unterscheidbarkeit in der Raumstimmung vom als anonym und unpersönlich empfundenen Spitalsbetrieb im Allgemeinen und die deutliche wahrnehmbare Positionierung der PKD im Vergleich zu ihren Mitkonkurrentinnen im Wiener Raum. Dabei wird die Stellung als führendes Haus und Trendsetter beansprucht. Generell läuft das derzeitige Adaptierungsprogramm der Klinik mit Schwerpunkt auf Qualitätsanhebung für die Patienten. Es sollen edle Materialien mit Naturbezug und eine aktivierende Beleuchtung bei wirtschaftlicher Verwendung die Aura der Räume aus dem Umfeld des Spitals in ein Umfeld mit hoher Lebensqualität und Lebensfreude transferieren. Die Liebe zum Detail soll erkennbar und manchmal auch überraschend sein. Akzente von Seriosität im Gestaltungsimage sollen die Professionalität der Dienstleistung am Menschen metaphorisch signalisieren.

Klinikerweiterung und das Ärztezentrum

Eine Baukörpertiefe von 25 Metern erfordert eine ganztägige weitgehend künstliche Beleuchtung des Gebäudes. Die wirtschaftliche Nutzung der Mietflächen bringt innenliegende Erschießungsbereiche, die kaum eine außenraumbezogene Orientierung zulassen. Hier wird versucht mit einem durchgängigen Innengestaltungs- und Raumkonzept die Schwächen der neutralen Standardlösung auszugleichen und durch gezielte aber gesamtheitlich wirkende Maßnahmen zu einem als angenehm empfundenen Lebens- und Aufenthaltsraum zu finden. Folgende Maßnahmenbereiche werden dabei eingesetzt:

Materialien

Es wird versucht, in der Ausgestaltung der Erschließungs-, Warte- und Verteilzonen sowie im Veranstaltungs-, Seminar- und Restaurantbereich eine Palette von "natürlichen" Materialien und Farbe einzusetzen. Durch den abgestimmten Mix der Elemente soll eine dezente aktivierende Spannung der Raumwirkungen erzielt werden, die monotonen und kalten Eindrücken ntgegenwirken. Es wird mit einem Mix aus matten absorbierenden und glatten reflektierenden Oberflächen gearbeitet, angelehnt an die Vielfalt von Naturräumen. In der Durchplanung wird durch entsprechende handwerkliche Ausführungsdetails die Gediegenheit der Raumlösung unterstützt.

Licht

Bei der Beleuchtung wird versucht, über eine neutrale Funktionsbeleuchtung hinaus durch Figurierung des Lichts Lichträume zu schaffen, die emotionale Reaktionen ähnlich wie natürliche Szenarien mit Tageslicht aktivieren.

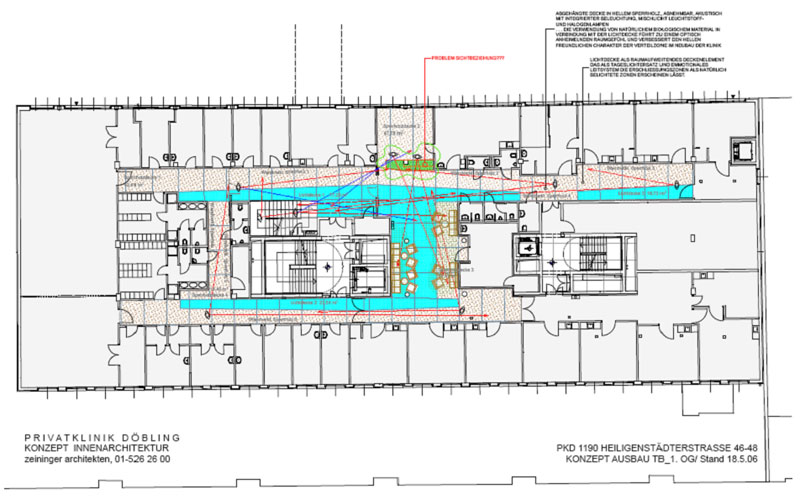
Raumsequenz Stiege3 - Brücke - Restaurant - Seminarbereich

Die Raumsequenz Stiegenhaus 3 (das zentrale Erschließungsstiegenhaus der Klinik) mit vorgelagerter Eingangssituation und Rezeption auf der Bestandsseite, der anschließenden aortenhaften Brückenverbindung, die in den Restaurations- und Seminarbereich übergeht, die zusätzlich die medizinischen Bereiche auf beiden Seiten verknüpft und die neue Zentralküche mit den Stationen im Altbau verbindet, wird in Zukunft den imagerelevant wirksamen Teil der Klink Döbling auch in der Innenwirkung ausmachen.

Restaurant- und Seminarbereich

Hier ist eine flexible Nutzung der Räume beabsichtigt. Die Beleuchtung muss den unterschiedlichen Anforderungen bei Tages- und Nachtbetrieb gerecht werden. Die Beleuchtung wird in Verbindung mit den Decken- und teilweise auch den Wandmaterialien mit stark unterschiedlichen Reflexionsgrad von brilliant/ glänzend-feierlich bis anheimelnd/ wärmend-gemütlich entwickelt. Die zentrale Entwurfsidee ist die Schaffung einer multifunktionellen Raumzone mit einer weitgehend unbehinderten Funktionsfläche, ähnlich den Räumen im Japanischen Haus. Erst durch die ausgeprägte Gestaltung der raumbegrenzenden Bauteile in Verbindung mit den mobilen und flexibel nutzbaren Einrichtungsgegenständen erhält der Raum sein unverwechselbares Gepräge.

Pflanzen, sowohl als "Grünvorhang" stationär vor der raumhohen Restaurantverglasung als auch mobil in Pflanzwannen als bewegliche Raumteiler einsetzbar, bilden einen wichtigen Natur- und Wohnbezug.

Die Wandflächen sollen durch eine einheitlich zurückhaltende Wandvertäfelung, die an der Längsrückwand des Restaurants durch die Integration einer indirekten Beleuchtung etwas exklusiver ausgebildet wird und als bewusster Eyecatcher dient, den gesamten Aktionsbereich als zusammenhängenden Bereich erkennen lassen.

Erschließungszonen im OG1

Die Erschießungszone im OG1 wird von Arch. Zeininger als besonders sensibel gesehen, da hier sich in Zukunft ein großer Anteil der nichtstationären Klientel am Weg in die Timesharingpraxen das persönliche Bild der Privatklinik Döbling neu generieren wird. Eine umsichtige Abstimmung aller klientenbezogenen Faktoren, wie der Empfang, das Weiterleiten in die Wartezonen, das Warten selbst, einer der emotional heikelsten Situationen in der medizinischen Betreuung und schließlich die direkte Kontaktaufnahme mit dem Arzt oder der Ärztin seines Vertrauens, ist dabei von großer Wichtigkeit, da die Timesharingpraxen zu einem wesentlichen wirtschaftlichen Dienstleistungssektor der Klinik ausgebaut werden.

Als positive Zielformulierung für die niedrige Deckenhöhe (siehe auch Modulor von LC >> 2,26 m, als Schnittstelle der roten und blauen Reihe) wird das Gestaltungsprofil von Kreuzfahrtjachten (Traumschiff) vorgeschlagen. Mit gediegenen Oberflächen kann das Volumsmanko ausgeglichen werden.

Durch die geringe Raumhöhe muss besonders auf eine einwandfreie Klimatisierung dieser Bereiche geachtet werden. Wesentlich für das Qualitätsempfinden ist hier die Lautstärke des Haustechnik-Geräuschpegels, der so niedrig wie möglich gehalten werden muss.

Um klaustrophobischen Tendenzen entgegen zu wirken, ist beabsichtigt, Teile der Decken als "Lichtdecke" auszuführen, die den Raum nach oben öffnen soll. Dabei ist an mattierte, für Wartungszwecke abnehmbare bzw. schwenkbare Glasfelder gedacht. Die Mattierung ist im Bereich von dahinter punktuell montierten Tiefstrahlern ausgesetzt, um auch einen akzentuierten, ausreichenden Lichtstrom nach unten in den Raum zu bekommen.

Durch die geringe Raumhöhe sind Oberlichten ausgeschlossen. Um die schmalen Gänge besonders in den Wartebereichen optisch aufzuweiten und ihnen die Enge zu nehmen, wird die Verwendung von in die Wandverkleidung über Augenhöhe integrierte Spiegelflächen vorgeschlagen. Sie erzeugen die Illusion des sich öffnenden Raumes und können in Verbindung mit angrenzenden Lichtdeckenelementen den Gangbereich erweiternd stimulieren.

Accessoires

Wartezimmer Berggasse

Es erscheint den Architekten wichtig, die Vertrauensstellung der Ärzteschaft durch kleine begleitende und Vertrauen stärkende Maßnahmen zu unterfüttern. In den Aufenthalts- und Wartebereichen sowie in den Timesharingpraxen sollen Bilder und Urkunden als persönliche Accessoires und geschichtliche Artefakte des Heilens dem Dienstleistungsort eine Aura des persönlichen Wirkens der Ärztin/ des Arztes und deren Teams verleihen. Als Diskussionsgrundlage wird dazu seitens der Architekten das Bild der Praxis von Sigmund Freud in der Berggasse eingebracht, die als Metapher eines Orts des Vertrauens zwischen Arzt und Patient angesehen wird.

Arbeits- und Behandlungsräume

In den Praxen und Behandlungsräumen selbst wird das Beleuchtungskonzept auf die Mischsituation von Tages- und Kunstlicht neben den funktionellen Grundbedürfnissen (keine Blendung in liegender Position) eingehen müssen. Im Bereich der Möblierung wird versucht, abweichend von der Standardlösung, durch Wandschränke den Stauraum zu erhöhen. Eine Zonierung in spontan zugängliche Schrankzonen (von +60 bis +200 cm Höhe) und Bereichen, die mittelfristigen Aufbewahrungsraum bieten, wurde vorgesehen.